
The future is flexible
ONE BLOCK
INFINITE POSSIBILITIES
ANYWHERE
SIMPLE, CONSISTENT,
BUILDING MODULE
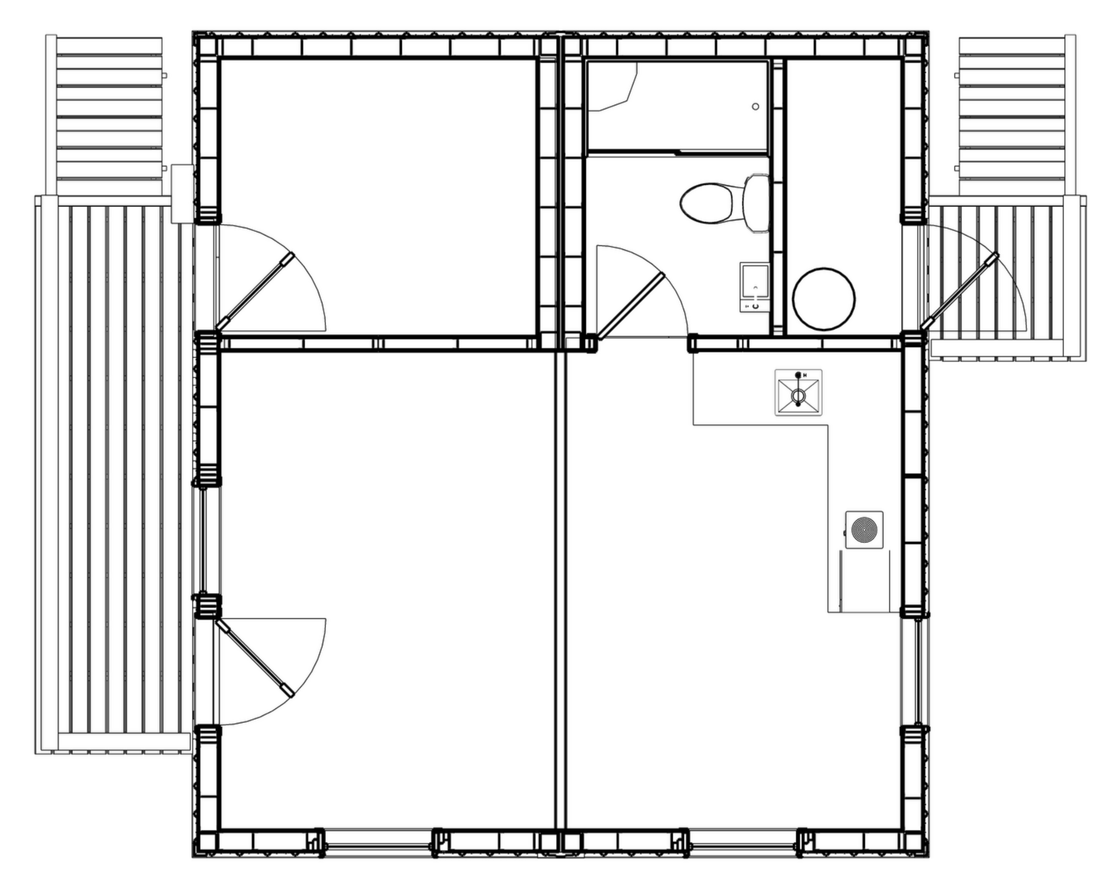
Qbit is a housing model using a standardized set of building units.
Each Qbit is 190 ft² (18 m²) of insulated, structurally sound floor area.
SCALING UP AND DOWN IS FUNDAMENTAL
As times change, the home can be scaled up or down to make the Qbit home as efficient as necessary.
Qbits units are universal in scale and structure, so individual Qbits can be sold on the used Qbit market for other homes.
The Prototype Qbit
New Denver, BC
Designed by Zigloo Designs - Constructed by Earthwright Shelter Company - Installed over 2 days in October 2021



























